Einzelhandel zur Miete in Hof
58104a - Einzelhandelsfläche am Bahnhofsplatz
Lage
Das Objekt befindet sich in einer stark frequentierten Lage zwischen Bahnhof und Innenstadt.
Die Stadt Hof ist mit ca. 45.000 Einwohnern eine der größten Städte in Oberfranken. „Hof … in Bayern ganz oben“ - dieser Slogan begleitet Hof schon viele Jahre und zeigt einerseits, dass die Stadt sich ganz im Norden von Bayern befindet und andererseits hoch oben auf ca. 500 Meter Höhe zwischen dem Fichtelgebirge und dem Frankenwald liegt. Die Stadt Hof ist heute Wirtschaftszentrum, beliebte Einkaufsstadt, Hochschulstadt, Kulturstadt mit Theater und großer Veranstaltungshalle sowie bevorzugter Wohnstandort mit vielen Freizeitmöglichkeiten.
Das Naherholungsgebiet Untreusee, das Hallenbad mit Saunaanlage, das Freibad, die vielen Vereine und Sportverbände, der „schönste Bürgerpark“ Deutschlands, das Eislaufstadion, der Zoo, eine Vielzahl von Fahrrad- und Nordic Walking-Rundwegen, die Saaleauen, die idyllischen Biergärten oder die vielfältigsten Feste und Veranstaltungen – Hof hat viel zu bieten. Die kreisfreie Stadt ist außerdem durch die Autobahnen A 93 (Hof - Regensburg), A9 (Berlin - München) und A72 (Plauen - Dresden) sowie den Flughafen Hof-Plauen und die guten Bahn- und Busverbindungen auch verkehrstechnisch sehr gut angebunden.
Ein Krankenhaus, renommierte Fachärzte, der gut ausgebaute öffentliche Nahverkehr und die unterschiedlichsten Einkaufsmöglichkeiten und Werksverkäufe runden das positive Erscheinungsbild von Hof entsprechend ab.
Sonstiges
Sie haben weitere Fragen bzw. möchten mehr über das hier angebotene Objekt erfahren ? Dann kontaktieren Sie uns bitte, entweder über das Anfrageformular oder rufen Sie uns an. Sie erreichen uns Montag bis Freitag von 9.00 bis 17.00 Uhr in unserer Zentrale im ImmobilienSHOP Hof, Ludwigstr. 52 unter unserer Service-Hotline 09281.860076. Wenn Sie uns schriftlich kontaktieren und noch nicht unser Kunde sind, bitten wir Sie Ihre Kontaktdaten uns vollständig zu übermitteln (Kompletter Name, Adresse, Telefonnummer, Emailadresse). Im Regelfall erfolgt die Bearbeitung Ihrer Anfrage dann innerhalb von 48 Stunden. Sollten Sie in dieser Zeit keine Antwort auf Ihre Anfrage von uns erhalten, schauen Sie bitte in Ihren SPAM-Ordner bzw. stellen Sie sicher, dass Ihr Emailpostfach auch ggfls. größere Datenmengen aufnehmen kann. Oder, und dies ist sicherlich das Beste, rufen Sie uns einfach kurz an. Sollten Sie einen Innenbesichtigungstermin wünschen, kontaktieren Sie uns ebenfalls bitte. Wir - DIE IMMOBILIENPROFIS - stehen Ihnen nunmehr bereits seit über 25 Jahren für "Alles rund um die Immobilie" kompetent mit Rat und Tat zur Seite. Unser Team aus Architekten, Gutachtern, Sachverständigen, Energieberatern, Finanzierungsexperten, Hausverwaltern, Neubauberatern und Immobilienprofis ist jederzeit gerne für Sie da. Auch empfehlen wir Ihnen regelmäßig einen Besuch unserer Homepage www.die-immobilienprofis.de, auf welcher Sie über 250 ständig wechselnde Kauf-, Neubau- und Mietobjekte finden können, nützliche Tipps und Immobiliennews erhalten, sowie auch Hunderte Referenzen und Bewertungen unserer Kunden einsehen können. Die Immobilienprofis ... Ihre Immobilienmakler mit Herz in Hof und Bad Steben.
Kontakt aufnehmen
58104a - Einzelhandelsfläche am Bahnhofsplatz
Ansprechpartner
T. Vogtmann
Telefon: +49 9281 860076
Telefax: +49 9281 8600777
vogtmann@die-immobilienprofis.de
Kontakt aufnehmenEinzelhandel zur Miete
| Miete zzgl. NK Preis auf Anfrage |
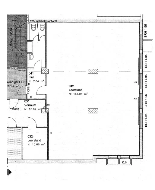
| Nutzfläche ca. 160 m² |
| Gesamtfläche ca. 160 m² |
| Verkaufsfläche ca. 160 m² |
| Objekt-Nr. 123209552#Qb2bXd |
Addresse
Bahnhofsplatz 1a, 95028 Hof
Energiebedarfsausweis
| Endenergiebedarf 128 kWh/(m²*a) |
| Heizungsart Zentralheizung |
| Baujahr (Energieausweis) 1966 |
| Energieeffizienzklasse D |
| Gültig bis 15.07.2026 |
0200400+
Ausstattung
| Anzahl Etagen 7 |
| Baujahr 1966 |
| Heizungsart Zentralheizung |
| Provisionspflichtig |
| Räume veränderbar |